Az értékesítő:
Fodor Norbert
+36 20 943 0187

Eladó családi ház Üllő, 177 000 000 Ft, 194 négyzetméter

177 000 000 Ft
családi ház, 194 négyzetméter
Építőanyag:
Tégla
Egész szobák:
4
Komfort fokozat:
Dupla komfort
Fűtés módja:
Gáz
Ingatlan állapota:
Kitűnő
Azonosító:
11591146
Értékesítés típusa:
eladó
Ingatlan típusa:
családi ház
Jelleg:
Családi ház
Település:
Üllő
Alapterület:
194
Telekterület:
558
Ár:
177 000 000 Ft
Fűtés jellege:
Cirkó
Kor:
Új építésű
Terasz:
Van
Erkély:
Van
Telekterület típusa:
négyzetméter
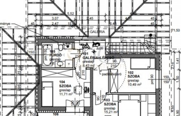
Varázslatos Karácsony egy Ékszerdobozban! Képzelje el otthonát Üllő szívében, a gyönyörű Sportliget lakóparkban! Most itt a lehetőség, hogy egy igazán különleges, azonnal költözhető ingatlant találjon, amely használatbavételi engedéllyel rendelkezik! Álmai Otthona Teljes Berendezéssel Várja! Fedezze fel Üllő egyik legkeresettebb újépítésű lakóparkját! Ez a lenyűgöző ingatlan már a belépés pillanatában meleg, otthonos atmoszférájával hívogat. Minden reggel a felkelő nap simogató fényével indulhat, míg este a napnyugta varázslatos színeiben pihenheti ki a nap fáradalmait. Ez nem csupán egy ház, hanem egy életérzés, egy menedék, ahol a boldogság és a kényelem találkozik. Otthon, Kényelem és Elegancia Ez a bruttó 198 nm-es, kétszintes családi ház erős, okos téglából készült, 20 cm-es homlokzati szigeteléssel, amely nemcsak megjelenésében lenyűgöző, hanem energiatakarékos is. A tágas, 59,75 nm-es amerikai konyhás nappali és étkező ideális a családi összejövetelekhez, míg három jól elhelyezett hálószoba biztosítja a privát szférát. Két fürdőszobával és egy nyitott galériával rendelkezik, mérhetetlen kényelmet kínálva. Varázslatos Kert és Kerti Pihenő Az ingatlanhoz tartozó 558 nm-es privát kert, amely közvetlenül a nappaliból megközelíthető, tökéletes helyszínt nyújt a város zajának elfeledésére. A kertben található egy 6 nm-es fűtött faház, amely ideális tárolásra, valamint lehetőséget ad kert baráti partik vagy medence kialakítására. A hátsó terasz pedig az önálló üdülőhelye lehet, ahol reggeli kávéját kortyolgatva vagy esti borozás közben élvezheti a szabad levegőt. Modern Fűtés és Hűtés Az otthon esztétikája mellett a fűtésért és melegvíz-ellátásért felelős 24-kw-os kondenzációs gázkazán padlófűtéssel, míg a prémium kategóriás inverteres klímák biztosítják a kellemes hőmérsékletet bármely évszakban. Kiváló Nyílászárók és Biztonság A három rétegű, Dió színű műanyag nyílászárók közel tökéletes hő- és hangszigetelést nyújtanak, miközben a biztonsági riasztórendszer és a Hikvision okos kaputelefon biztosítja otthona védelmét. Kiváló Elhelyezkedés és Kiváló Közlekedési Lehetőségek A lakópark környéke élénk, pizzériákkal, szépségszalonokkal, kisboltokkal, valamint közeli óvodákkal és bölcsődékben várja Önt és családját. A legközelebbi boltok (Penny, ALDI, TESCO) mindössze 5 percre találhatók, így a vásárlás mindig gyors és kényelmes. A közlekedési lehetőségek is kiválóak, Budapest távolsági busszal és autóval is könnyen elérhető, a vasúti fejlesztés pedig folyamatosan javul. INGYENES Hitelügyintézés! Irodánk ingyenes hitelügyintézéssel és tanácsadással segíti Önt, számos banki ajánlat közül választhat, beleértve az új CSOK igénylését is!
https://ingatlanok.hu/elado/haz/ullo/177-millio-ft;194-negyzetmeter;4-szoba;cirko-futes/11591146