Az értékesítő:
Fodor Norbert
+36 20 943 0187

Eladó családi ház Budapest XVII. ker, 144 900 000 Ft, 130 négyzetméter

144 900 000 Ft
családi ház, 130 négyzetméter
Építőanyag:
Tégla
Egész szobák:
5
Komfort fokozat:
Dupla komfort
Ingatlan állapota:
Kitűnő
Azonosító:
11582325
Értékesítés típusa:
eladó
Ingatlan típusa:
családi ház
Jelleg:
Ikerház
Település:
Budapest XVII. ker
Alapterület:
130
Telekterület:
400
Ár:
144 900 000 Ft
Kor:
Új építésű
Terasz:
Van
Erkély:
Nincs
Telekterület típusa:
négyzetméter
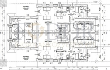
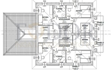
Eladó új építésű ikerházak XVII.KERÜLET DINAMIKUSAN FEJLŐDŐ, ÚJ PARCELLÁZÁSÚ MELLÉKUTCÁJÁBAN. – A tökéletes választás modern családok számára! AZ ÉPÍTKEZÉS ELKEZDŐDÖTT!!!! Fedezze fel ezt a lenyűgöző, kétszintes ikerházat, amely a XVII. kerület csendes mellékutcájában várja új tulajdonosát. A két lakás külön bejárattal, saját utcafronttal és egyedi telek-résszel rendelkezik, garantálva a privát életérzést. A lakás jellemzői: • Hasznos lakóterület: 114,85 m² – Tágas amerikai konyhás nappalik, 4 külön be-járatú hálószoba és gardróbszoba. • Két szint, két fürdőszoba, 15 m²-es terasz és 2,5 m², 3,8 m²-es erkélyek a pihenéshez. • Szintenként padlófűtés, fürdőszobákban törölközőszárítós radiátorok. • 16 m²-es garázs és elektromos kapu előkészítéssel. • Kertkapcsolatos nappali a pihenés és a szórakozás jegyében. • Hőszivattyús rendszer, modern energia hatékony megoldások Minőségi kivitelezés, prémium alapanyagok: • 30 cm-es főfal + 15 cm homlokzati szigetelés a maximális energiahatékonyságért. • A lakások között dupla SILKA hangátlófallal lesz elválasztva, garantálva az egymástól levő elszeparálódást. • 3 rétegű hő- és hangszigetelt nyílászárók a kellemes belső klímáért. • Műanyag redőny előkészítés, modern szekcionált garázsajtó. • Térkövezett kocsibejáró és személyi bejáró, az egész ház körül. A jelű lakás bruttó 130 m2, 15 m2 terasz, 2,5, 3,8 m2 erkély, 400 m2 privát telekterület 144,9 Millió Forint B jelű lakás bruttó 130 m2, 15 m2 terasz, 2,5, 3,8 m2 erkély, 400 m2 privát telekterület 144,9 Millió Forint Emelt műszaki tartalommal az ingatlanok ára:149,9 Milló Forint. Környék: • Kiváló infrastruktúra: Minden fontos szolgáltatás, iskola, bevásárlóközpont, és tő-megközlekedési lehetőség pár perc sétára. Az ár a kulcsrakész állapotra vonatkozik, az Ön igényei szerint választhatóak burkolatok, szaniterek, és beltéri ajtók. Keressen minket bizalommal, és kérjen bővebb tájékoztatást! Hívjon most, és tekintse meg személyesen! IRODÁNK INGYENES HITEL ÜGYINTÉZÉSSEL, TANÁCSADÁSSAL, SZÁMOS BANK AJÁNLATÁVAL ÉS AZ ÚJ CSOK FOLYÓSÍTÁSÁVAL VÁRJA ÜGYFELEIT.
https://ingatlanok.hu/elado/haz/budapest-xvii-ker/145-millio-ft;130-negyzetmeter;5-szoba;nincs-megadva-futes/11582325