Eladó családi ház Üllő 105 000 000 Ft

Leírás

Álmai Otthona Üllőn!

Fedezze fel az új építésű, modern családi házak által kialakított otthon teremtette lehetőségeket csendes, mellékutcai környezetben!

Kiemelkedő jellemzők:

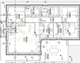
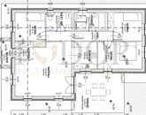
Tágas elrendezés: Az Ön új otthona nettó 94 m²-es, 1 nappali és 3 hálószobás kialakítással rendelkezik, ahol a család minden tagja megtalálhatja a számára ideális helyet a kényelmes együttéléshez.

Korszerű fűtés-hűtés rendszer: Magas műszaki tartalom és megújuló energiaforrások használata vár Önre. A Stiebel hőszivattyús rendszer mennyezeti hűtést és fűtést, valamint padlófűtést biztosít minden helyiségben, termosztátos vezérléssel a maximális kényelem érdekében.

Gyönyörű terasz: Az ingatlanhoz tartozó 21 m²-es terasz, amely burkolása is az árban szerepel, ideális helyszín baráti összejövetelekhez vagy családi grillezésekhez.


Környezet és elhelyezkedés:

Az ingatlan egy 465 m²-es saját telken helyezkedik el, önálló családi házként. Utcafrontról megközelíthető, ezzel biztosítva a magánéletet és a csendet.

A hátsó ingatlan elkelt!

A tervezett építkezés 2026. április végén indul, a ház várhatóan 2026. November 30-án készül el, lehetőséget biztosítva arra, hogy személyre szabja belső elrendezését saját igényei szerint.


Kiemelt előnyök:

Pénzügyi lehetőségek: Babaváró támogatás, CSOK PLUSZ illetékmentesség, Otthon Start programra jogosult hitel igényelhető, így könnyedén megvalósíthatja álmai otthonát.

Megbízható kivitelező: Tapasztalt és tőkeerős kivitelezők munkáját élvezheti, akik precíz és minőségi anyagokkal dolgoznak. Korábbi referenciaházak a közelben igazolják a szakmai felkészültségüket.


Tulajdonságok:

Amerikai konyhás, világos nappali

3 külön hálószoba

1 fürdőszoba + 2 WC

Saját, privát 465 m²-es telekterület

Bővebb információért és részletes tájékoztatásért keressen bizalommal!

• Falazat: Leiertherm 30-as N+F tégla
• Szigetelés: homlokzaton 15 cm-es hőszigetelő rendszer, a padozat alatt 15 cm lépésálló
• Stiebel hőszivattyú
• eps, födémszigetelés 30 cm ásványgyapot
• Nyílászárók: fehér Kömmerling 5 kamrás 3 rétegű üvegezéssel,.
• Áram ellátás 3x20A, +1x20 A"H" tarifa
• Stiebel hőszivattyú
• 1 DB Inverteres Hütő-fütő Klíma
• Antracit Bramac cserép

Tulajdonságok:
• amerikai konyhás világos nappali
• 3 db hálószoba
• 1 db fürdő / 2wc
• Saját privát telekterület 465 nm
• Riasztó rendszer vezetékelve
• elektromos kapu előkészítés
• elektromos aluminium redőny


A hirdetésben látható képek referencia házakról készültek, így Ön is elképzelheti, milyen szép otthona lehet!

Bővebb információért és személyes tájékoztatásért keressen bennünket bizalommal!

IRODÁNK INGYENES HITEL ÜGYINTÉZÉSSEL, TANÁCSADÁSSAL, SZÁMOS BANK AJÁNLATÁVAL ÉS AZ ÚJ CSOK FOLYÓSÍTÁSÁVAL VÁRJA ÜGYFELEIT!

Családi ház részletei

Ár: 105 000 000 Ft
Méret: 94 négyzetméter
Azonosító: 11601933
Irodai azonosító: 350018
Telek: 465 négyzetméter
Ingatlan állapota: Kitűnő
Jelleg: családi ház
Építőanyag: Tégla
Komfort fokozat: Összkomfort
Kor: Új építésű
Egész szobák: 4

Egyéb jellemzők

  • Terasz