Eladó családi ház Budapest XVIII. ker 139 900 000 Ft

Leírás

Új építésű ikerházak eladóak az Almáskertben, Budapest XVIII. kerületében! Már csak a bal oldali ikerház eladó!
Kiváló elhelyezkedéssel, új építésű, energiatakarékos ikerház várja új tulajdonosát az Almáskert családias, zöldövezeti részén. Az ingatlan modern kialakításával és prémium kivitelezésével tökéletes választás családok számára, akik tágas, kényelmes otthont keresnek. Az 1202 négyzetméteres telek utcafrontjára egy önálló, körbejárható családi ház, míg az udvar felől egy ikerház épül.
Főbb jellemzők:
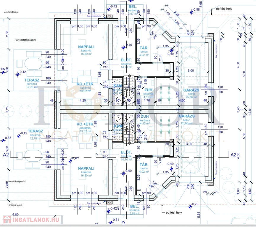
• Hasznos alapterület: Önálló családi ház: 146 m², Ikerházak: 142 m²
• Telekméret: Önálló családi ház 348 m², Ikerházak külön-külön: 425 m²
Elosztás:
Földszint:
• Előszoba
• Garázs
• Tároló
• Amerikai konyhás nappali
• Kamra
• Zuhanyzós WC
• Terasz
Emelet:
• 3 nagyméretű szoba, ebből 2 erkélykapcsolatos
• Tágas fürdőszoba
• Háztartási helyiség
Műszaki paraméterek:
• Fűtés: Hőszivattyús padlófűtés minden helyiségben.
• Mennyezet hűtés-fűtés
• Szigetelés:
o 15 cm vastag grafitos homlokzati szigetelés.
o 20 cm födémszigetelés.
• Nyílászárók: 3 rétegű, hang- és hőszigetelt műanyag ablakok.
• Ikerház kivitelezése: Dupla fallal, hanggátló téglával épülnek az ingatlanok elkerülve a hanghatásokat.
Extrák:
• Kiépített riasztó- és kamerarendszer a biztonság érdekében.
• Klíma előkészítés a nappaliban, amely bármikor felszerelhető.
• Elektromos nagykapu a kényelmes parkolásért.
• Elektromos garázskapu, mely hőszigetelt és szekcionált.
• Választható elemek: A szaniterek, burkolatok és beltéri ajtók igény szerint választhatók.
• Központi porszívó rendszer: a maximális tisztaság érdekében.
Egyedi lehetőségek:
Az építkezés készenléti állapotától függően egyedi kívánságok és módosítások is megvalósíthatók, a megrendelő költségére.
Egyéb információk:
• Az ár kulcsrakész állapotra vonatkozik.
• Az ingatlan társasházi alapító okirattal kerül átadásra.
• Tőkeerős, megbízható kivitelező, referencia házak a közelben megtekinthetőek.
• Várható átadás: 2025. IV. negyedév.
Környezet és infrastruktúra:
• Az Almáskert Budapest egyik legkedveltebb zöldövezeti része, családbarát környezettel.
• Kiváló közlekedési lehetőségek, iskola, óvoda, boltok a közelben.
Ár: 139,9 MFt
A leírás és az alaprajz kizárólag tájékoztató jellegű.
Már csak a bal oldali ikerház elérhető!
IRODÁNK INGYENES HITELÜGYINTÉZÉSSEL, TANÁCSADÁSSAL, SZÁMOS BANK AJÁNLATÁVAL ÉS ÚJ CSOK PLUSZ FOLYÓSÍTÁSÁVAL VÁRJA ÜGYFELEIT.
Ez a modern, energiatakarékos és prémium kivitelezésű otthon rövid időn belül birtokba vehető. Ne hagyja ki ezt a lehetőséget, hogy álmai otthonába költözhessen!

Családi ház részletei

Ár: 139 900 000 Ft
Méret: 142 négyzetméter
Azonosító: 11560182
Irodai azonosító: 335879
Ingatlan állapota: Átlagos
Jelleg: ikerház
Építőanyag: Kérdezzen rá a hirdetőtől »
Egész szobák: 5